Projects - Construction Design


Construction Design
- BIM, Visualization & Conceptual





















Client - Aznizawan Sdn Bhd - End Client - SPNB Aspirasi SB & PKNS, Selangor
Project - 3 Blocks Apartments
(Rumah Selangorku) - Sek U12, Shah Alam
BIM, Building Information Modeling
All Trade Model, LOD 300, LOD 400 & LOD 500 (As Built)
Clash Detection
Quantity Take Off
Clash Free Multidisciplinary Coordinated Model & Shop Drawings
Renewable Energy Concept Design
Photovoltaic Solar Design & Calculation
Heat Pump System Design & Calculation
Instantaneous Water Heater Calculation
Renewable Energy Integration Design
Construction Design
- Visualization & Tender Design






Client - Fajarbaru Group Bhd
Project - LRT 3 Package GS01 - Bandar Utama
Visualization Design
Tender Design

Construction Design
- Visualization & Tender Design




Client - Fajarbaru Group Bhd
Project - LRT 3 Package GS03 - Damansara
Visualization Design
Tender Design

Construction Design
- BIM & Visualization













Client - Fajarbaru Group Bhd
Project - Rica Residence - Sentul, Kuala Lumpur
BIM, Building Information Modeling
All Trade Model, LOD 300, LOD 400
& LOD 500 (As Built)
Clash Detection
Quantity Take Off
Clash Free Multidisciplinary Coordinated Model & Shop Drawings

Construction Design
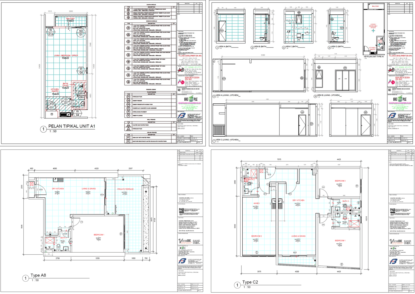
- MEPSF Coordinated 4 Wall Drawings


Construction Design
- Clash Analysis - Raw Findings


Construction Design
-Multidiscipline Coordination Drawing








Construction Design
-4D Simulation - Work Progress Tracking


Construction Design
- Conceptual, Visualization & BIM



Client - Alfred Talke Sdn Bhd, End Clinet: Westports, Malaysia
Project - Talke Warehouse - Westports, Malaysia
BIM, Building Information Modeling
All Trade Model, LOD 300, LOD 400 & LOD 500 (As Built)
Clash Detection
Quantity Take Off
Clash Free Multidisciplinary Coordinated Model & Shop Drawings



Construction Design
- Conceptual, Visualization & BIM



Client - Seahawk, End Client: Northport, Malaysia
Project - Bulk Liquid Terminal - Northport, Malaysia
BIM, Building Information Modeling
All Trade Model, LOD 300, LOD 400 & LOD 500 (As Built)
Clash Detection
Quantity Take Off
Clash Free Multidisciplinary Coordinated Model & Shop Drawings



Construction Design
- Conceptual, Visualization & BIM



Client - Seahawk, End Client: DP World, Dubai
Project - Bulk Liquid Farm & Warehouse - Port of Jebel Ali, Dubai
BIM, Building Information Modeling
All Trade Model, LOD 300, LOD 400 & LOD 500 (As Built)
Clash Detection
Quantity Take Off
Clash Free Multidisciplinary Coordinated Model & Shop Drawings



Construction Design
- Conceptual, Visualization & BIM



Client - Seahawk, End Client: Westports, Malaysia
Project - Petrochemical & Chemical Warehouse - Westports, Malaysia
BIM, Building Information Modeling
All Trade Model, LOD 300, LOD 400 & LOD 500 (As Built)
Clash Detection
Quantity Take Off
Clash Free Multidisciplinary Coordinated Model & Shop Drawings




Construction Design
- Conceptual & Visualization



Client - Pioneer Pac Sdn Bhd
Project - Warehouse General Goods - Northport, Malaysia
Construction Design
- Method of Work-Concept Studies
Construction Design - BIM


Project - Sungai Marang Bridge - Terengganu, Malaysia
BIM, Building Information Modeling
All Trade Model, LOD 300, LOD 400 & LOD 500 (As Built)
Clash Detection
Quantity Take Off
Clash Free Multidisciplinary Coordinated Model & Shop Drawings
Construction Design - BIM






Project - Sungai Buloh Bridge - Selangor, Malaysia
BIM, Building Information Modeling
All Trade Model, LOD 300, LOD 400 & LOD 500 (As Built)
Clash Detection
Quantity Take Off
Clash Free Multidisciplinary Coordinated Model & Shop Drawings
Construction Design
-Model Review (Structure & MEPF)








Construction design - Visualization & BIM
EKKU ENGINEERING SDN BHD - WEDDING HALL – rawang, selangor








Construction design - CONCEPTUAL Visualization & RENDERING
Restaurant NASI KANDAR MUSTIKA – rnr rawang, plus highway, malaysia




Construction design - CONCEPTUAL Visualization & RENDERING
ROCHE (m) SB - Blood donation center – ppum – sunway pyramid





Construction design - CONCEPTUAL Visualization & RENDERING
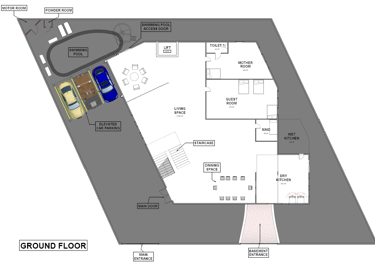
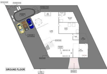
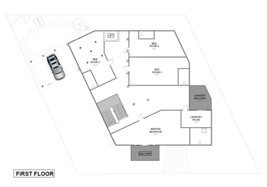
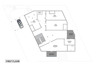
AZNIZAWAN SDN BHD - Private bunglow – negeri sembilan, malaysia












Construction design - CONCEPTUAL Visualization
SEE OIK SDN BHD - WET MARKET – SUNGAI BULOH, SELANGOR, MALAYSIA












Your Partner in Engineering Excellence
Building Information Modeling Experts
Our dedicated team collaborates closely with clients, establishing robust project processes for assessing on BIM Tools and providing a solid foundation for successful outcomes in every endeavor.

